
Τρισδιάστατη γεωμετρική αποτύπωση κατασκευών
Δραστηριοποιούμαστε στην Κρήτη με την τρισδιάστατη γεωμετρική και φωτορεαλιστική αποτύπωση κατασκευών απο τις αρχές του 2021.
Χρησιμοποιώντας 3D laser scanner και εξειδικευμένο εξοπλισμό, προσφέρουμε υπηρεσίες αποτύπωσης υψηλής ακρίβειας και πιστότητας ακόμα και για τις πλέον απαιτητικές περιπτώσεις.
Μας επιλέγουν συνάδελφοι μηχανικοί, επιχειρηματίες του χώρου των κατασκευών και του τουρισμού, δημόσιοι φορείς, εκπαιδευτικά ιδρύματα και πολλοί ακόμα.
Παραδοτέα
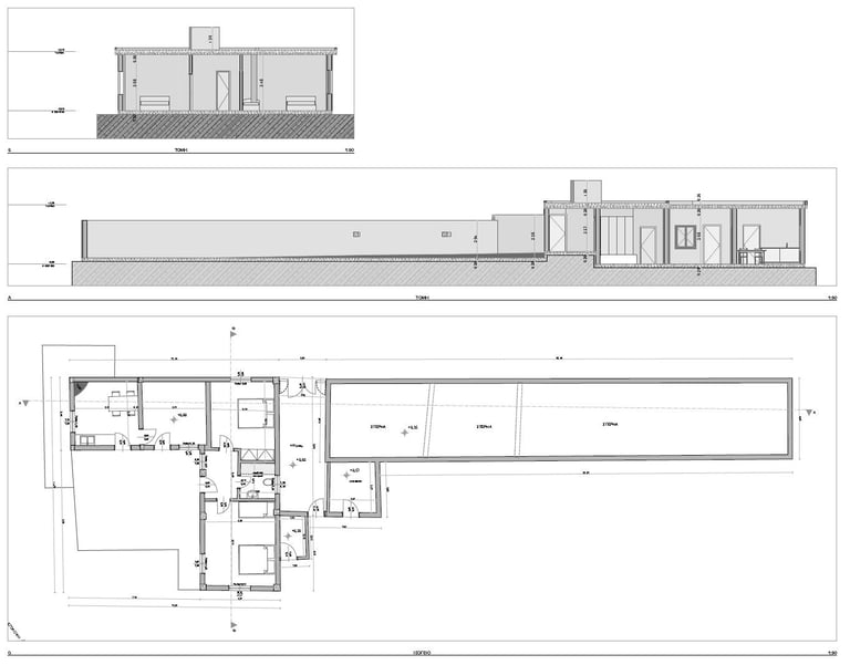
Αρχιτεκτονικά σχέδια
Κατόψεις, όψεις και τομές σε οποιαδήποτε θέση.
Μετρήσεις γεωμετρικών μεγεθών και αποκλίσεων επιπεδότητας
Διαστάσεις και γωνίες σε οποιαδήποτε θέση. Οπτικοποίηση υψομετρικών διαφορών σε επιφάνειες δωμάτων.




Νέφος σημείων (point cloud)
Η απλούστερη μορφή παραδοτέου, εύκολα και γρήγορα επεξεργάσιμη.
Βίντεο εικονικής περιήγησης
Ένα σύντομης διάρκειας βίντεο που μπορούν να το παρακολουθήσουν οι πελάτες μας απο οποιονδήποτε υπολογιστή ή κινητό τηλέφωνο.
Ορθοεικόνες
Ιδιαίτερα χρήσιμες για τη ρεαλιστική αποτύπωση με υψηλή γεωμετρική ακρίβεια, διορθωμένες ως προς το ανάγλυφο, χωρίς παραμορφώσεις.
Τρισδιάστατα μοντέλα
Αναπαριστούν τρισδιάστατα τη γεωμετρία κατασκευών, περιλαμβάνοντας την υφή και το χρώμα των επιφανειών τους.
Ψηφιακό μοντέλο επιφανείας (DEM) & Ψηφιακό μοντέλο εδάφους (DSM)
Αναπαράσταση του εδαφικού ανάγλυφου με πλήρη γεωμορφολογικά χαρακτηριστικά και ακριβή δεδομένα για υψόμετρα και κλίσεις.




